43
$735,500 Sale
Listed 1 day
190 OSBORN Avenue
· 3+1
· 2.5
· 3
· 1383
Key Facts
Key facts for 190 OSBORN Avenue
Property Type
House, House
Parking
Garage: Yes, 3 parking
MLS #
40778341
Size
1383 sqft
Basement
Finished, Full (Finished)
Listed on
-
Lot size
-
Tax
-
Days on Market
-
Year Built
-
Maintenance Fee
-
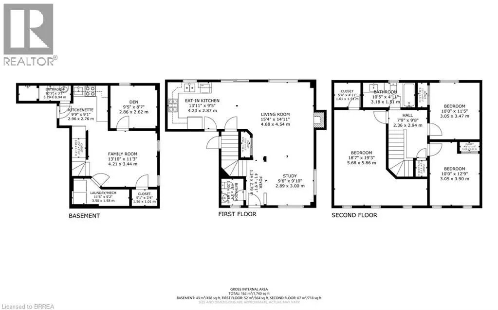
Description
Welcome to this spacious 3-bedroom, 3-bathroom home offering comfort, style, and versatility. The updated kitchen features beautiful quartz countertops and modern finishes, perfect for both everyday living and entertaining. Enjoy relaxing on the covered front porch or hosting gatherings on the large... back deck overlooking a generous backyard complete with a storage shed. Inside, the home is bright and inviting, with multiple windows and updated lighting throughout. A double-wide driveway provides ample parking, along with a single-car garage. The garage includes a separate entrance leading to a fully finished basement, featuring its own kitchen, bathroom, laundry, living room, and bedroom — an excellent option for extended family, guests, or potential rental income. Additional highlights include a natural gas furnace and fireplace, water softener, and multiple sets of appliances including 2 sets of Laundry machines. Ideally located close to parks, schools, and shopping, this property combines modern updates with functional living spaces both upstairs and down. (id:10452)
Similar Properties (No results)
Room Types
2pc Bathroom
-
Dimensions 5'4'' x 4'5''
23.56 sqft
3pc Bathroom
-
Dimensions 3'1'' x 10'5''
32.12 sqft
4pc Bathroom
-
Dimensions 4'11'' x 10'5''
51.22 sqft
Listing courtesy of: Re/Max Twin City Realty Inc.
This REALTOR.ca listing content is owned and licensed by REALTOR® members of The Canadian Real Estate Association.