17
$14 Rent
Listed 17 hours ago
100 BURLAND Crescent Unit# 2, #2
· 0
· 0.0
· 0
· 12931
Key Facts
Key facts for 100 BURLAND Crescent Unit# 2, #2
Property Type
Commercial
Parking
Garage: No, 0 parking
MLS #
40775267
Size
12931 sqft
Basement
None
Listed on
-
Lot size
-
Tax
-
Days on Market
-
Year Built
-
Maintenance Fee
-
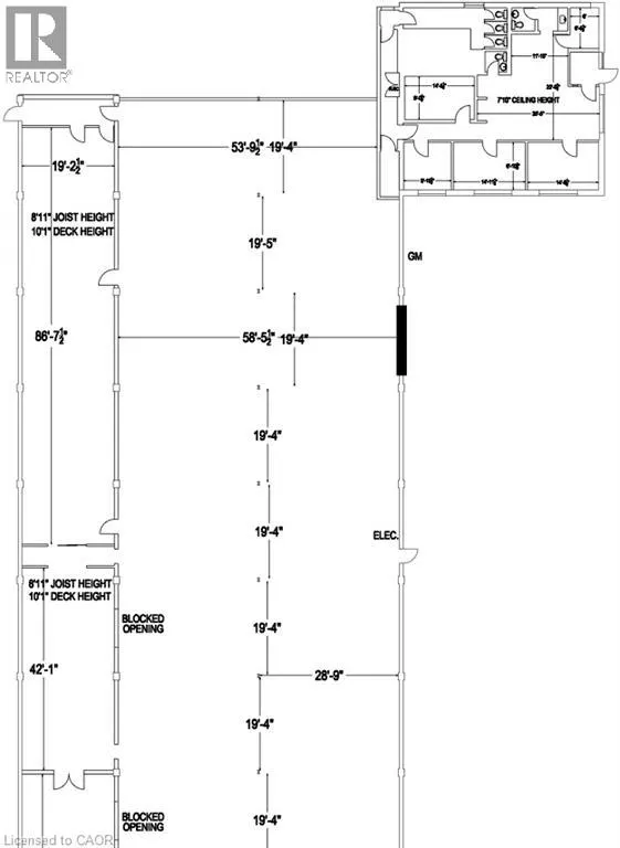
Description
This 12,900 sq ft industrial unit features: two 5-ton cranes, 100 Amp and 600 Volt power, joist heights of up to 17' 10, 1,900 sq ft of office space, a fenced-in yard, and plenty of parking. The property is zoned “M5 - General Industrial” which is ideal for manufacturing, industrial, production, ser...vices, warehouse, or the like. This convenient location is only 4-minutes from the QEW, 4-minutes to the Red Hill Valley Pkwy, 8- minutes to Burlington, and is roughly the midway point between the United States border and the city of Toronto. (id:10452)
Similar Properties (No results)
Listing courtesy of: Realty Network
This REALTOR.ca listing content is owned and licensed by REALTOR® members of The Canadian Real Estate Association.